Добро пожаловать на http://vipplan.ru

Випплан Рязань - это тысячи проектов домов в нашем каталоге!

Вы всегда сможете найти для себя проект дома вашей мечты! Даже если этого не случилось, мы готовы в любую минуту предложить проект индивидуального дома.

Забыли пароль?
Вы еще не регистрировались?

Перейдите по ссылке ниже на страницу регистрации.

Регистрация...

Внимание!!!

В проектную документацию могут быть внесены изменения любой сложности, в соответствии в Вашими пожеланиями!

Полезные статьи

Выбор проекта дома в Рязани

Выбор проекта дома может завести семью в тупик. Прийти к одному конкретному мнению всем членам семьи очень сложно. Кому-то по душе, чтобы дом был большой и одноэтажный, с красивой террасой или верандой, кому-то хочется жить в двухэтажном доме с балконом. Детям, в основном, нравятся дома с мансардой....

Применение свайных фундаментов

Сваи представляют собой длинные стержни, погруженные глубоко в грунт или изготовленные непосредственно в грунте. Покупные сваи с одной стороны имеют заостренный конец, который забивается в почву с помощью специальной техники. Установка свай, изготовленных своими руками, предполагают бурение скважин, армирование и заливку бетонного раствора. ...

Проекты домов и коттеджей > Каталог проектов домов > Двухэтажный дом с террасами Vg3133

Двухэтажный дом с террасами Vg3133

Двухэтажный дом с террасами
Зарегистрируйтесь

Проект № Vg3133


Техническое описание
Общая площадь: 159.21 м2
Жилая площадь: 74.23 м2
Высота здания: 7.89 м
Размеры дома: 15.16м×13.33м
Кол-во комнат: 5
Цокольный этаж: нет
Гараж: нет
Мансарда: нет

Kонструкция
Фундамент: ленточный
Перекрытия: монолитные
Материал стен: material_mon

Архитектурный раздел
Конструктивный раздел
АР+КР - 56 000 (Со скидкой 20%)
Проект двухэтажного дома с террасами, с размерами здания 15,16 х 13,33 м. Фундамент - монолитный ленточный ж/б с подошвой под несущими стенами. Наружные стены - газобетонные блоки толщиной с утеплением минеральной ватой и отделкой фиброцементными панелями по металлической подсистеме. Внутренние стены - газобетонные блоки. Перегородки - рядовой кирпич. Пол 1 этажа - по монолитной ж/б плите. Межэтажное и чердачное перекрытия - монолитные ж/б. Лестница - монолитная ж/б. Окна — металлопластиковые.
Генплан застройки участка / Паспорт проекта 7000 руб / 10000 руб
Инженерный раздел (полный) 79500 руб
Смета на строительство 39750 руб
Теплотехнический расчет материалов стен Бесплатно
Стоимость проекта со незначительнми изменениями 66000 руб
Стоимость проекта со средними изменениями* 78000 руб
Стоимость проекта со значительными изменениями** 81100 руб

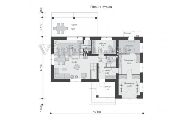
План первого этажа


Тамбур - 5,42 м2
Помещение 1 - 11,55 м2
Помещение 2 - 11,59 м2
Бойлерная - 7,88 м2
Кабинет - 9,20 м2
С/у - 2,86 м2
Холл - 2,55 м2
Гостиная - 24,05 м2
Кухня - 12,43 м2
Кладовая - 2,16 м2

Двухэтажный дом с террасами

Двухэтажный дом с террасами

План второго этажа


Холл - 5,78 м2
Спальня - 13,90 м2
Спальня - 14,17 м2
С/у - 6,10 м2
Гардероб - 4,39 м2
Спальня - 12,91 м2
Терраса - 40,88 (12,27) м2
Двухэтажный дом с террасами Двухэтажный дом с террасами Двухэтажный дом с террасами Двухэтажный дом с террасами

Модификации проектов

Внесение изменений и привязка к участку строительства

В любой из проектов от компании VIPplan - Рязань по вашему желанию могут быть внесены изменения в материалы стен, материалы наружной отделки дома, а также будет произведена адаптация проекта под конкретный регион строительства (с учетом грунтов региона, геологических особенностей вашего участка и местных климатических условий) - БЕСПЛАТНО !!! (кроме проектов со скидкой и проектов наших партнеров).

Любой из проектов, размещенных на сайте ryazan.vipplan.ru мы можем выполнить из требуемых вам строительных материалов: ячеистый бетон (газобетон, пеноблок), керамоблок, кирпич, шлакоблок, бетонный блок, дерево (брус, клееный брус), каркасная технология (деревянный каркас, металлокаркас (ЛСТК)).

Фасад дома и его наружную отделку так же возможно выполнить с применением различных облицовочных материалов: структурной штукатурки, (с утеплителем и без), сайдингом (пластиковый или металлосайдинг), фиброплитами, кирпича.

 
6 Избранные
проекты

Доставка проектов по России: Москва (Московская область), Санкт-Петербург (Ленинградская область), Краснодар, Ростов-на-Дону, Ставрополь, Сочи, Волгоград, Новосибирск, Белгород, Брянск, Воронеж, Саратов, Хабаровск, Астрахань, Нальчик, Владикавказ, Екатеринбург, Тюмень, Самара, Нижний Новгород, Казань, Пермь, Уфа, Челябинск, Красноярск, Ханты-Мансийск, Иркутск, Курган, Оренбург, Омск, Томск, Барнаул, Новокузнецк, Кемерово, Абакан, Чита, Якутск, Южно-Сахалинск, Петропавловск-Камчатский и страны ближнего зарубежья: Белоруссия, Украина, Казахстан