Добро пожаловать на http://vipplan.ru

Випплан Рязань - это тысячи проектов домов в нашем каталоге!

Вы всегда сможете найти для себя проект дома вашей мечты! Даже если этого не случилось, мы готовы в любую минуту предложить проект индивидуального дома.

Забыли пароль?
Вы еще не регистрировались?

Перейдите по ссылке ниже на страницу регистрации.

Регистрация...

Внимание!!!

В проектную документацию могут быть внесены изменения любой сложности, в соответствии в Вашими пожеланиями!

Полезные статьи

Виды фундаментов

Можно смело сказать, что самое главное качество фундамента - надежность. Фундамент дома бывает нескольких видов. Все они отличаются прочностью, технологией закладывания и областью использования. Запомните, экономить на фундаменте – плохая идея. Затраты на ремонт будут огромными, а зачастую в случае нарушения технологии закладки фундамента исправить ошибку будет невозможно....

Дом это прекрасное вложение

Современный рынок недвижимости диктует свои правила. Цены на землю и недвижимость в Рязани постоянно растут и вынуждают по-другому смотреть на покупку собственного дома. Не только со стороны получения удобного, благоустроенного жилья, но и со стороны капитализации и инвестировании своих средств...

Проекты домов и коттеджей > Каталог проектов домов > Проект комфортного двухэтажного дома с цоколем и гаражом Vg1249

Проект комфортного двухэтажного дома с цоколем и гаражом Vg1249

Проект комфортного двухэтажного дома с цоколем и гаражом
Зарегистрируйтесь

Проект № Vg1249


Техническое описание
Общая площадь: 339.07 м2
Жилая площадь: 143.94 м2
Высота здания: 9.45 м
Размеры дома: 16.04м×13.44м
Кол-во комнат: 6
Цокольный этаж: есть
Гараж: нет
Мансарда: нет

Kонструкция
Фундамент: Ленточный монолитный ж/б
Перекрытия: Ж/б плиты
Материал стен: Газобетон

Архитектурный раздел
Конструктивный раздел
АР+КР - 84 000 (Со скидкой 20%)
Проект индивидуального двухтажного жилого дома с подвалом с размерами здания 16,04 x 13,44 м. Наружная отделка здания – клинкерная плитка Фундамент – ленточный монолитный ж/б (под несущими стенами). Наружные стены – газобетонные блоки, экструдированный пенополистирол, клинкерная плитка. Внутренние стены - из газобетонных блоков. Перегородки – из газобетонных блоков. Пол подвала - пол по грунту. Межэтажное перекрытие-ж/б плиты. Чердачное перекрытие — деревянные балки. Крыша металлочерепица. Кровля – многоскатая. Окна - металлопластиковые, выполненные по индивидуальному заказу.
Генплан застройки участка / Паспорт проекта 7000 руб / 10000 руб
Инженерный раздел (полный) 169500 руб
Смета на строительство 84750 руб
Теплотехнический расчет материалов стен Бесплатно
Стоимость проекта со незначительнми изменениями 96500 руб
Стоимость проекта со средними изменениями* 122000 руб
Стоимость проекта со значительными изменениями** 128700 руб

План цокольного этажа


Тамбур — 5,69 кв м
Помещение 1 — 39,27 кв м
Помещение 2 — 12,71 кв м

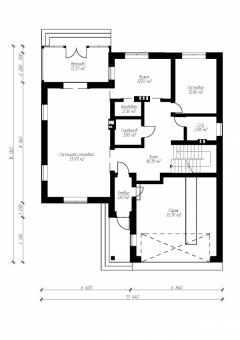
План первого этажа


Тамбур — 3,81 кв м
Гараж — 35,70 кв м
Холл — 18,78 кв м
Гардероб — 3,80 кв м
Кладовая — 2,36 кв м
С/у — 3,98 кв м
Гостевая — 12,86 кв м
Кухня — 12,63 кв м
Веранда — 13,37 кв м
Гостиная — 37,97 кв м

Проект комфортного двухэтажного дома с цоколем и гаражом

Проект комфортного двухэтажного дома с цоколем и гаражом

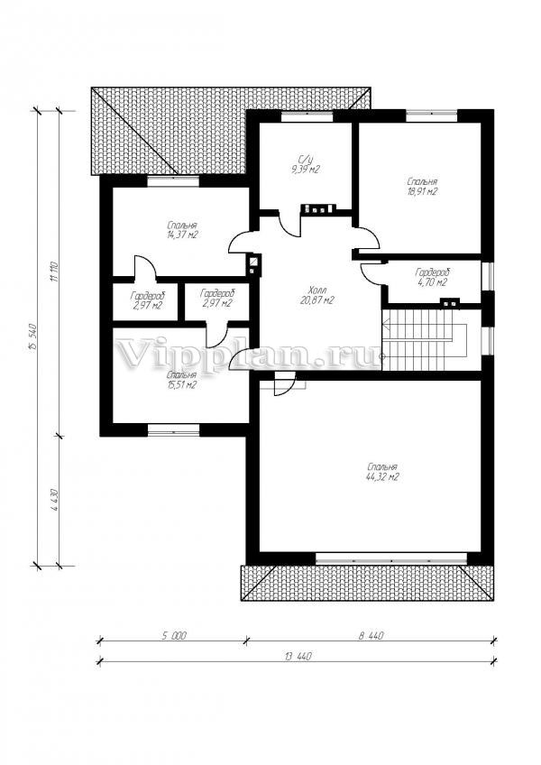
План второго этажа


Спальня — 18,91 кв м
С/у — 9,39 кв м
Гардероб — 2,97 кв м
Гардероб — 2,97 кв м
Холл — 20,87 кв м
Гардероб — 4,70 кв м
Спальня — 15,51 кв м
Спальня — 44,32 кв м
Проект комфортного двухэтажного дома с цоколем и гаражом Проект комфортного двухэтажного дома с цоколем и гаражом Проект комфортного двухэтажного дома с цоколем и гаражом Проект комфортного двухэтажного дома с цоколем и гаражом

Модификации проектов

Внесение изменений и привязка к участку строительства

В любой из проектов от компании VIPplan - Рязань по вашему желанию могут быть внесены изменения в материалы стен, материалы наружной отделки дома, а также будет произведена адаптация проекта под конкретный регион строительства (с учетом грунтов региона, геологических особенностей вашего участка и местных климатических условий) - БЕСПЛАТНО !!! (кроме проектов со скидкой и проектов наших партнеров).

Любой из проектов, размещенных на сайте ryazan.vipplan.ru мы можем выполнить из требуемых вам строительных материалов: ячеистый бетон (газобетон, пеноблок), керамоблок, кирпич, шлакоблок, бетонный блок, дерево (брус, клееный брус), каркасная технология (деревянный каркас, металлокаркас (ЛСТК)).

Фасад дома и его наружную отделку так же возможно выполнить с применением различных облицовочных материалов: структурной штукатурки, (с утеплителем и без), сайдингом (пластиковый или металлосайдинг), фиброплитами, кирпича.

 
6 Избранные
проекты

Доставка проектов по России: Москва (Московская область), Санкт-Петербург (Ленинградская область), Краснодар, Ростов-на-Дону, Ставрополь, Сочи, Волгоград, Новосибирск, Белгород, Брянск, Воронеж, Саратов, Хабаровск, Астрахань, Нальчик, Владикавказ, Екатеринбург, Тюмень, Самара, Нижний Новгород, Казань, Пермь, Уфа, Челябинск, Красноярск, Ханты-Мансийск, Иркутск, Курган, Оренбург, Омск, Томск, Барнаул, Новокузнецк, Кемерово, Абакан, Чита, Якутск, Южно-Сахалинск, Петропавловск-Камчатский и страны ближнего зарубежья: Белоруссия, Украина, Казахстан